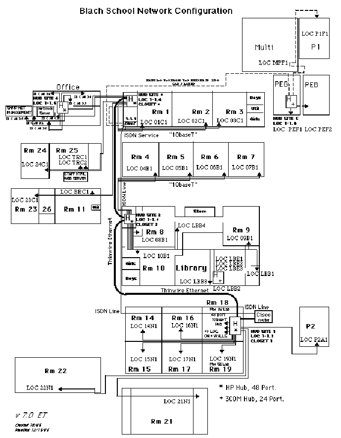
Blach School Network Configuration